Strokovne podlage za prostorske akte

Strokovne podlage za prostorske akte pripravljamo v obliki strokovnih podlag za razvoj poselitve, za usmerjanje dejavnosti v krajini, za sanacijo razvrednotenih območij, za razvoj na območjih varstva narave, za umeščanje infrastrukturnih objektov v prostor, za ureditev kamnolomov, pokopališč, športnih in rekreacijskih območij ipd.


Strokovne podlage za utemeljevanje sprememb namenske rabe prostora pripravljamo na željo naročnikov, ki želijo opredelitev novega stavbnega zemljišča v OPN. Pri tem upoštevamo želje naročnika, naravne danosti in ustvarjene razmere, strokovna izhodišča iz nadrejenih prostorskih aktov in varstvene režime ter zahteve nosilcev urejanja prostora, ki v postopkih priprave OPN posredujejo svoje smernice in mnenja. Načrtovane rešitve vključujejo urbanistične rešitve in rešitve gospodarske javne infrastrukture, predlagane spremembe namembnosti pa utemeljimo z vseh relevantnih vidikov ob upoštevanju strokovnih meril in varstvenih režimov.

Galerija

Povpraševanje

Vas zanimajo naše storitve? Pišite nam ali pa nas pokličite - z veseljem se vam bomo predstavili in vam svetovali.

Urbanizem, strokovne podlage in študije variant

Pomembnejše reference

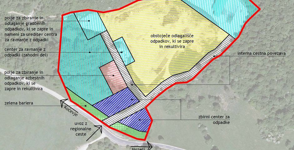
  • Izdelava strokovnih podlag za ravnanje z odpadki na območju odlagališča Mozelj, naročnik Komunala Kočevje, julij 2014
  • Utemeljitev pobude za spremembo OPN MO Novo mesto, naročnik Borut in Mateja Škerlj, maj 2014
  • Idejna zasnova za preureditev območja nekdanje Opekarne Zalog, naročnik Ekosistemi, april 2011
  • Idejna zasnova za Športni park pri OŠ Metlika, naročnik Občina Metlika, marec 2011
  • Strokovne podlage za turistično rekreacijsko območje Želebej, naročnik Zvonko Gerbec, maj 2010
  • Strokovne podlage za Obrtno cono Ponikve, naročnik Občina Dobrepolje, junij 2008
  • Idejna zasnova prostorske ureditve gospodarske cone Cikava, naročnik Mestna občina Novo mesto, oktober 2007
  • Strokovne podlage za pridobivanje gline v Zalogu pri Novem mestu, naročnik Opekarna Novo mesto, julij 2006
  • Romska naselja v občini Novo mesto, naročnik Mestna občina Novo mesto, junij 2006
  • Vinogradniška območja v občini Novo mesto, naročnik Mestna občina Novo mesto, junij 2006
  • Podrobnejše strokovne podlage za golf igrišče, Blato, naročnik Občina Trebnje, marec 2004
  • Podrobnejše strokovne podlage za stanovanjsko obrtno cono Mokronog, naročnik Občina Trebnje, marec 2004
  • Strokovne podlage za Romsko naselje Hudeje, naročnik Občina Trebnje, marec 2004